ANY

2011

PROGRAMA

Residencial · Rehabilitació

SUPERFÍCIE

220.00 m2

FOTOGRAFIA

Nicneu Studio

Rehabilitació i ampliació d’una caseta aparellada, a la part alta de la ciutat, a l’històric barri de La Mercè.

La urbanització, projectada al 1944 i construïda al 1950 per l’ Obra Sindical del Hogar, consistent en un barri de casetes modestes, a mode de ciutat-jardí. La tipologia

d’ edificació era en agrupacions de 2 cases amb una paret en comú. Les casetes disposaven de planta baixa i planta pis, amb jardí.

El conjunt està catalogat com a Patrimoni Arquitectònic amb un nivell de protecció urbanístic que obliga a mantenir volumetria i façanes a mes de colors i caracterís-

tiques de l’ edificació original, garantint el manteniment de l’ homogeneïtat tipològica del barri.

 
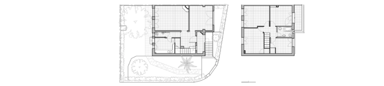
Investigació i recerca de plànols històrics a l’arxiu: Planta i Alçat d’habitatge tipus C-C1 1944
 
Es van rehabilitar les façanes sense afectar-les i es va demolir l’interior, apareixent un espai desaprofitat sota la coberta, amb la presència d’una preciosa encavallada de fusta. També es va excavar una planta soterrani sota l’empremta de l’edifici, guanyant per a la casa, aquest dos nivells addicionals.
 
Fotos obra: buidat interior –
El projecte resol les necessitats d’un programa familiar a las dues plantes originals, amb l’addició d’una sala i el garatge a planta soterrani, i d’unes golfes sota la coberta, donant protagonisme a l’encavallada de fusta, com a element arquitectònic i decoratiu.
Avda. Vallcarca 180 08023 Barcelona 666 436 945 demiquel@coac.net

ESP