ANY

2011

PROGRAMA

Residencial · Rehabilitació

SUPERFÍCIE

63.00 m2

FOTOGRAFIA

Nicneu Studio

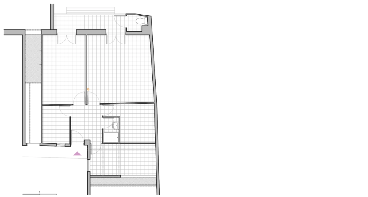
Aquest petit apartament del barri de Sant Pere fou adquirit per una fotògrafa per a la seva rehabilitació. L’ edifici disposa d’un pati central que permet l’accés d’al-

guns habitatges a través d’aquest, en forma de corrala.

La troballa de 1,5m d’alçada lliure sobre el cel ras, va permetre generar un altell i deixar a doble alçada certs espais de l’habitatge. Unes antigues bigues de fusta un

cop netes i restaurades es deixaren aparents, i una columna circular de ferro colat, que exempta i de color taronja, destaca com a element ornamental de l’habitatge.

Es tracta d’un apartament diàfan amb una habitació amb bany i vestidor, i l’espai de cuina-menjador-estar. A l’altell hi ha l’estudi i una zona de magatzem, i s’hi puja

per una escala oberta a la sala. Disposa també d’una petita terrassa amb el safareig.

Avda. Vallcarca 180 08023 Barcelona 666 436 945 demiquel@coac.net

ESP