ANY

2015

PROGRAMA

Residencial · Rehabilitació

SUPERFÍCIE

185.00 m2

FOTOGRAFIA

Gemma Comas

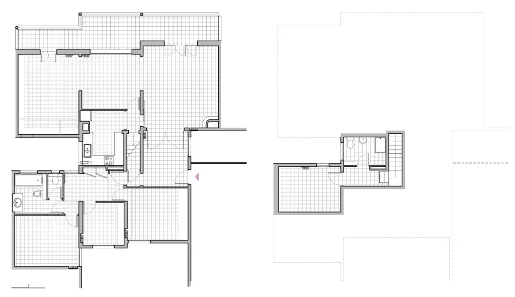
Projecte de rehabilitació d’un pis per a convertir-lo en habitatge + estudi per una fotògrafa.

Situat al barri de Sant Gervasi, a un edifici catalogat com bé d’interès cultural nacional. Tota la intervenció es va plantejar amb la protecció de volumetria, façanes,

material i cromatisme.

El projecte va consistir en aconseguir amb la menor intervenció el màxim profit possible als elements existents, optimitzant espais, renovant paviments, fusteries i

cambres humides.

A la nova distribució, la cuina queda oberta al menjador, amagant la caldera i rentadora a una nova estança de màquines. A més, s’ aconsegueix la separació de flu-

xos entre l’habitatge i els espais de treball, permetent la intimitat de les estances, respecte l’estudi fotogràfic, proper a l’accés. S’incorpora un vestidor a l’habitació

principal i al costat de la sala s’habilita un espai com a plató ocasional de fotografia. La planta alta es manté com estança per als convidats.

Avda. Vallcarca 180 08023 Barcelona 666 436 945 demiquel@coac.net

ESP